皮带机落料点、中转站粉尘严重怎么办?

文章来源:浩业皮带机厂  人气:  发表时间:2020-03-14 11:04
    带式输送机是应用最普遍的输送机械设备,具有可运输的原材料品种繁多、噪声较小、原材料运输稳定、运作维护费劣等特性。可是在落料点和转站全过程中存有因原材料起伏高、含粉率大等难题,导致落料点或转运站工地扬尘比较严重等状况,造成布袋子除尘器除尘实际效果差,不能满足加工工艺规定,它是许多公司头疼的难题。
 
    伴随着智能化和现代化的发展趋势系统进程,工地扬尘综合性治理刻不容缓。文中共享一种好用的抑尘设备。它充分利用了流体力学基本原理和流体动力学基本原理,具备设计构思新奇、构造科学研究、科技含量高、使用方便、除灰成效显著、无二次污染等突显特性。对布袋式除尘器不可以处理的烟尘量大的原材料具备与众不同的抑尘优点。
 
    一、关键组成
 
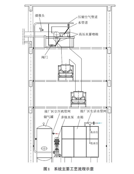
    带式输送机抑尘系统软件关键有:气动阀门设备、多级别加压水泵和水汽管道及自动喷淋系统,另外相互配合交流电机调速技术性等电机控制模块。包含:喷头4套、闸阀4个、水汽管路200m、15m³储水箱1个、多级别离心水泵1台、软启动器等自动化技术设备1套、实时监控设备1套。系统软件天燃气来源于工业区空气压缩机气动阀门管道网,根据管路联接至本系统软件,并设定1m³空压机储气罐1个;系统软件自来水来源于工业区衣食住行水管道网,根据管路联接至本系统软件,并设定15m³储水箱1个,液位计自动控制系统水位线。
 
    二、生产流程
 
    带式输送机抑尘系统软件生产流程提示见图1,髙压水汽混和喷漆枪提示见图2。
 
皮带输送机抑尘系统工艺流程示意图
髙压水汽混和喷漆枪提示图
 
    高含粉率原材料随带式输送机运作至转站落料点处,选用髙压水汽对原材料料幕保持透过式充足增湿,根据水汽对细微烟尘颗粒物包囊,从而做到除尘目地。
 
    三、具体方法
 
    (1)在皮带输送机发动机罩安裝洒水抑尘设备:4个髙压水汽混和喷漆枪根据法兰盘螺钉连接各自安裝固定不动在皮带输送机下料仓及皮带输送机头罩上,左右各2个,呈对称性布局。自动喷淋系统的15m³储水箱、1m³空压机储气罐及多级别离心水泵集中化布局在转站架构底端0平面图,髙压水汽混和喷漆枪根据闸阀及主水汽管道保持左右联接。
 
    (2)空压机储气罐联接自工业区空气压缩机气动阀门管道网。储水箱联接工业区衣食住行水管道网,并根据液位计操纵保持远程控制DCS自动控制系统方式。
 
    (3)机械自动化:多级别加压水泵电机选用软启动器操纵方法,頻率设定为20~50Hz。
 
    中央政府主控室实际操作工作人员依据传动带运输原材料含粉率不一样,采用不一样的离心水泵运作頻率(选用软启动器操纵离心水泵方法),洒水雾操纵选用远程控制DCS监控器,人工控制,实际操作工作人员并根据远程摄像头,明确做雾化抑尘设备投切時间。
 
 
    总结
 
    此方式的特性:
 
    (1)在避免和减少带式输送机含烟尘原材料运送层面拥有很高的通用性和优良的抑尘实际效果,非常合适高含粉率原材料传动带运输的抑尘。
 
    (2)本次抑尘设备的技术改造规定是原材料含水量不超出5%的自然环境下可用。
 
    (3)系统软件水汽工作压力可调式,以考虑不一样原材料工地扬尘浓度值规定。
 
    (4)远程控制DCS保持自动控制系统方式,实际操作便捷。
 
    (5)更新改造运营成本较低,增湿用髙压水雾喷头、空压机储气罐、储水箱等累计约6.95万余元。
 
    (6)改进了办公环境,确保了职工的身心健康。降低烟尘排污对环境空气的环境污染。

标签: 皮带机

更多>>

推荐文章

2025-01-16输送带跑偏严重的综合判断标准

2025-01-16输送带跑偏严重性的界定

2025-01-14带式输送机输送带抖动严重的判断依据抖动幅度与频率

2025-01-14带式输送机轴承座损坏的检查方法外观与振动分析检查法

2025-01-14带式输送机输送带强度不足解决方案

2025-01-14外观检查法识别带式输送机输送带边缘磨损

2025-01-13观察法判断带式输送机托辊支架歪斜

2025-01-13带式输送机滚筒粘料预防措施

2025-01-13带式输送机输送带老化外观判断

2025-01-13带式输送机张紧装置故障初步观察

Copyright © 2019-2024 山西浩业通用设备有限公司 版权所有 网站地图

QQ咨询

微信咨询

加微信,获取报价
返回顶部
粤B2-20****59-1 =============